exponantes hall XXL

carre Télécharger la fiche PDF

carre Téléchargez le plan 2D

carre Téléchargez le plan 3D

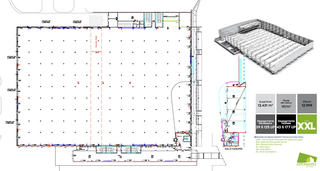
carre Superficie 12.431 m2
carre DIMENSIONS
135 mètres x 93 mètres
carre HAUTEUR UTILE
12,50 mètres sous charpente en partie sud 9 mètres en partie nord. Accrochage à la structure autorisé
carre NATURE DU SOL
Béton ciré. Surcharge au sol autorisée : 1 tonne au m2
carre PAROIS INTERIEURES
Bardage aggloméré bois (OSB)
carre ACCES TECHNIQUES
5 portails mécaniques L5,8m x H6m (façades nord et est) Pourtour du hall en bitume
carre ALIMENTATIONS ELECTRIQUES
3 transformateurs de 630 kA
Réseau exposant distribué en aérien par 16 canalis 250A
carre ALIMENTATIONS EN EAU
Trappes au sol tous les 9 mètres en longueur et largeur
carre CHAUFFAGE
Chauffage au gaz (panneaux rayonnants et ventilation naturelle)
carre AIR COMPRIME
Réseau de distribution intégré (pas de compresseur)
carre ECLAIRAGES
Fluos + iodures
carre TELECOMMUNICATIONS
Réseau fibre optique
carre ACCES VISITEURS
2 ensembles de portes ouverts sur une galerie intérieure Dimensions de la galerie : 90m x 9m / hauteur 3,5m Sol de la galerie : béton ciré / surcharge 600 kg par m2
carre SANITAIRES
4 blocs sanitaires (2 dans la galerie, 2 dans le hall)
carre ESPACES ASSOCIES
1 salle de conférence (500 personnes) divisible en 4 salles indépendantes en mezzanine façade sud
 

 

 
  • 1-vj-1043
  • 2-vj-9526
  • 3-Hand-5998
  • 4-vj-0803
  • 5-Galerie XXL Congrès unimev3
  • 6-fise-5811
  • 7-vj-5126
  • 8-vj-5103
  • 9-vj-2680
  • 10-fise-5660
  • 11-fise-5422
  • 12-Habiter-3613
  • 13-fise-5845
  • 14-fise-5902
  • 15-Serbotel-8093
  • 16-Serbotel-8111
  • 17-Serbotel-8125
  • 18-Serbotel-8268
  • 19-Habiter-3685
  • 20-Habiter-4195
  • 21-Hand-6331
  • 22-canope-3573
  • 23-canope-3993
  • 24-canope-3987
Slideshow Maker by WOWSlider.com v5.0m
td>